Capannone in affitto

Presezzo, Via G. Pascoli
Informazioni in agenzia
2 locali 2 locali
3500 Mq 3500 Mq
2 bagni 2 bagni

Capannone in affitto

Presezzo, Via G. Pascoli

Descrizione annuncio

COSA SAPERE DELL'IMMOBILE
PER INFORMAZIONI ED APPUNTAMENTI CHIAMA 035 77 30 58
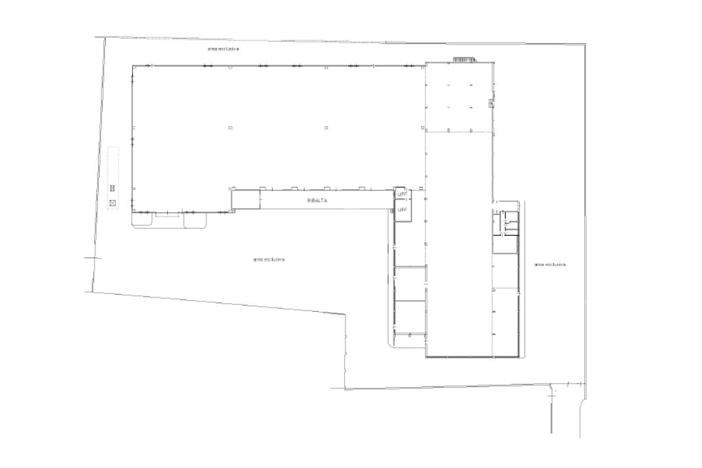
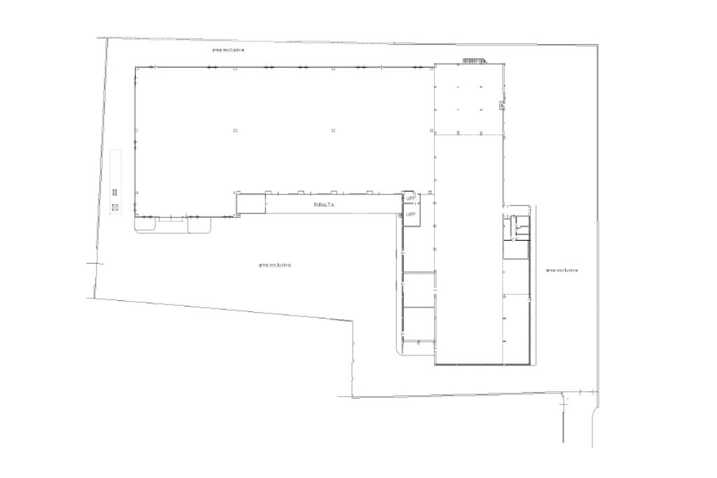
Il capannone proposto in locazione ha una superficie di circa 3.500 metri quadrati, a cui si aggiungono ulteriori 2.380 metri quadrati di area esterna.

DESCRIZIONE E PARTICOLARITA'
Il capannone ha una superficie complessiva di 3.500 metri quadrati, sviluppata interamente al piano terra e suddivisa in quattro campate: 3 campate presentano un’altezza di 7,50 metri con sottotrave di circa 6,70 metri e una campata è alta 4,50 metri. L’accesso è garantito da un portone di 4,50 metri di altezza per 5,20 metri di larghezza. L’immobile è servito da tre ribalte e una pesa interna con portata di 600 chilogrammi. Il fabbricato è inoltre dotato di due servizi igienici con spogliatoi e di circa 75 metri quadrati destinati a uso ufficio. Il capannone è munito di impianto elettrico e di illuminazione, impianto fotovoltaico, sistema di raccolta delle acque tramite vasca.

UBICAZIONE E CONTESTO
Il capannone si trova nel comune di Presezzo.

Mostra tutto

Nelle vicinanze

Trasporto pubblico Trasporto pubblico
Ponte San Pietro
Ponte San Pietro
1,0 Km
Trenino "Le Cornelle"
Trenino "Le Cornelle"
3,0 Km
821
821
520 m
Capolinea A1
Capolinea A1
530 m
Ricariche auto elettriche Ricariche auto elettriche
Evbility Presezzo
230 m
Iperal Presezzo
470 m
Evbility Ponte San Pietro
730 m
EnelX Polisportiva Brembate
2,2 Km
EnelX Campo Di Calcio Brembate
2,7 Km
Scuole Scuole
Istituto Tecnico Commerciale "Maironi da Ponte"
270 m
Liceo Scientifico "Maironi da Ponte"
310 m
Scuola Primaria comunale
660 m
Scuola Elementare
1,1 Km
Scuole
1,2 Km
Farmacia Farmacia
Farmacia
450 m
Mauri
1,1 Km
Farmacia Le Ghiaie
1,2 Km
Farmacia Piazzini
1,4 Km
Farmacia Comunale
2,6 Km
Ospedali Ospedali
Policlinico San Pietro
590 m
Supermercati Supermercati
Iperal
410 m
Penny Market
630 m
Unes2
1,2 Km
LD
1,5 Km
Famila
2,0 Km
Negozi Negozi
Negozi
1,3 Km
MD Market
1,5 Km
On the Run
2,3 Km
U2
2,5 Km
Marchini Maurizio Laboratiorio Pasticceria
2,6 Km
Bar Bar
bar del bocciodromo
360 m
Via Rampinelli
1,1 Km
Bar
1,1 Km
Cioccolateria Principe Umberto
1,3 Km
Bar
1,4 Km
Ristoranti Ristoranti
Ristorante Sandro
620 m
Sbafo
1,3 Km
Cucina Cereda
1,4 Km
Alla Vecchia Fontana
1,5 Km
Roby's
1,7 Km
Mostra tutto

Caratteristiche

Rif.:
61130289
Piano:
Terra di 1
Totale piani:
1
Condizionamento:
Assente
Ascensore:
No
Riscaldamento:
Assente
Mostra tutto
Prezzo Prezzo
Informazioni in agenzia
Spese annue Spese annue
€ 0

Altre caratteristiche

Descrizione dei locali
Bagno Cieco

Classe Energetica

F
F
F
F
F
F
F
F
F
EP invernale del fabbricato:
EP estiva del fabbricato:
Anno di costruzione:
1990
Riscaldamento:
Assente

Ti interessa visionare l'immobile?

Fissa un appuntamento  Fissa un appuntamento

Richiedi informazioni

Clicca su Leggi per aprire l'informativa
* Questi campi sono obbligatori
Affiliato
Industriale Curno Srl
Via Lecco, 73/A 24035 Curno (BG)

Il nostro staff


  • Debora Defendi
    Collaboratrice

  • Camilla Gervasoni
    Collaboratrice

  • Ermanno Leoni
    Affiliato

  • Alessia Mazzoleni
    Collaboratrice

  • Chiara Innocenti
    Coordinatrice

  • Susanna Ye
    Collaboratrice

  • Alice Cesana Zotti
    Affiliata
Via Lecco, 73/A 24035 Curno (BG)
Zona: Almenno San Salvatore-Valbrembo-Curno-Presezzo-Isola Bergamasca Nord Ovest
Mostra su mappa
Affiliato
Industriale Curno Srl
Via Lecco, 73/A 24035 Curno (BG)

2025 Tecnocasa Franchising S.p.A. - P. IVA 08365160152 - Via Monte Bianco 60/A 20089 Rozzano (MI). Ogni agenzia ha un proprio titolare ed è autonoma. Privacy policy | Policy utilizzo | Cookie policy