Capannone in affitto

Medolago, Via Roma
€ 2.300 / mese
5 locali 5 locali
690 Mq 690 Mq

Capannone in affitto

Medolago, Via Roma

Questo immobile dispone di soluzioni frazionate

Descrizione annuncio

COSA SAPERE DELL'IMMOBILE

PER INFORMAZIONI ED APPUNTAMENTI CHIAMA 035 77 30 58

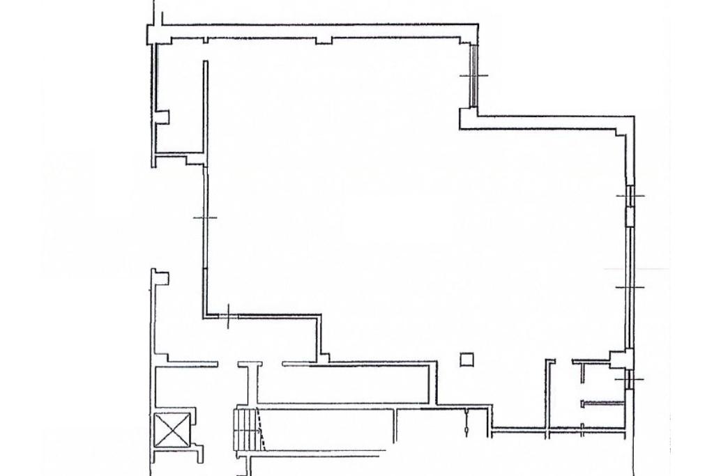
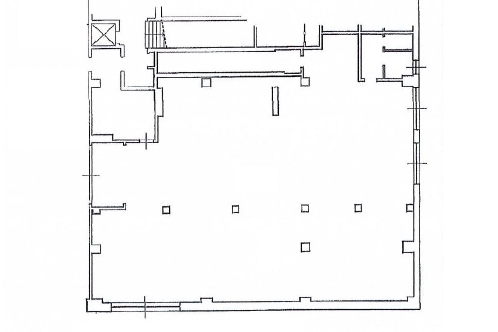
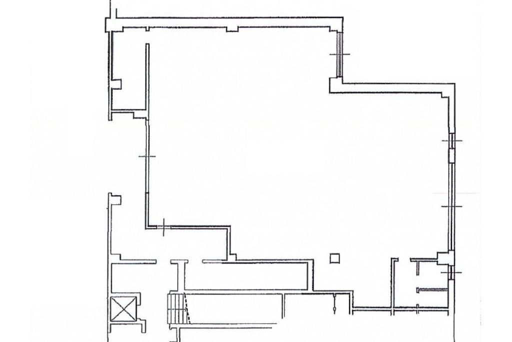
Proponiamo in locazione un capannone con superficie complessiva di circa 690 metri quadrati, situato al piano seminterrato di una struttura commerciale sviluppata su due livelli.

DESCRIZIONE E PARTICOLARITA'


Il capannone, per un totale di circa 690 metri quadrati, si sviluppa al piano seminterrato di una struttura commerciale di due livelli ed è composto da due locali rispettivamente di 370 e 320 metri quadrati.
La prima porzione, di circa 370 metri quadrati, si estende lungo due campate dettate dalla presenza di pilastri ed è suddivisa in ulteriori tre locali. Presenta un’altezza interna di 5,10 metri, un’altezza sottotrave di 3,90 metri ed è accessibile tramite un portone alto 3,00 metri e largo 4,10 metri. Il capannone presenta inoltre la predisposizione per un servizio igienico.
La seconda porzione, di circa 320 metri quadrati, si sviluppa lungo un’unica campata ed è suddivisa in due locali. Dispone di un’altezza interna di 5,10 metri, un’altezza sottotrave di 4,50 metri ed è accessibile tramite un portone alto 3,10 metri e largo 5,40 metri.

Entrambe le unità sono servite dall’impianto elettrico, dall’impianto di illuminazione e risultano raggiungibili tramite comoda rampa.

La soluzione sarà disponibile a partire dal mese di Maggio 2026.

UBICAZIONE E CONTESTO

Il complesso è ubicato nel Comune di Medolago, in prossimità della Strada Provinciale SP170, la quale collega il paese ai Comuni limitrofi.

Mostra tutto

Nelle vicinanze

Trasporto pubblico Trasporto pubblico
Calusco
Calusco
2,5 Km
Trasporto pubblico
250 m
Ricariche auto elettriche Ricariche auto elettriche
Gran Mercato Calusco d'Adda | EnelX
2,8 Km
Scuole Scuole
Scuole Primarie
1,8 Km
Scuola Primaria Leonardo da Vinci
1,8 Km
Scuole Secondarie di Primo Grado
1,9 Km
Scuola Elementare paritaria parificata Maria Consolatrice
2,0 Km
Farmacia Farmacia
Farmacia
1,7 Km
Supermercati Supermercati
Gran Mercato
2,8 Km
Bar Bar
La Coda del Gallo
2,7 Km
Ristoranti Ristoranti
Al Peperoncino
990 m
Al Boschetto
2,7 Km
Al Castello
2,8 Km
Yama
2,8 Km
Mostra tutto

Caratteristiche

Rif.:
61150344
Piano:
-1 di 2 (Piano seminterrato)
Condizionamento:
Assente
Ascensore:
No
Riscaldamento:
Assente
Libero:
No
Mostra tutto
Prezzo Prezzo
€ 2.300 / mese
Spese annue Spese annue
€ 1.200

Altre caratteristiche

Classe Energetica

Questo immobile è esente da classe energetica
Anno di costruzione:
2022
Riscaldamento:
Assente

Ti interessa visionare l'immobile?

Fissa un appuntamento  Fissa un appuntamento

Richiedi informazioni

Clicca su Leggi per aprire l'informativa
* Questi campi sono obbligatori
Affiliato
Industriale Curno Srl
Via Lecco, 73/A 24035 Curno (BG)

Il nostro staff


  • Debora Defendi
    Collaboratrice

  • Camilla Gervasoni
    Collaboratrice

  • Ermanno Leoni
    Affiliato

  • Alessia Mazzoleni
    Collaboratrice

  • Chiara Innocenti
    Coordinatrice

  • Susanna Ye
    Collaboratrice

  • Alice Cesana Zotti
    Affiliata
Via Lecco, 73/A 24035 Curno (BG)
Zona: Almenno San Salvatore-Valbrembo-Curno-Presezzo-Isola Bergamasca Nord Ovest
Mostra su mappa
Affiliato
Industriale Curno Srl
Via Lecco, 73/A 24035 Curno (BG)

2025 Tecnocasa Franchising S.p.A. - P. IVA 08365160152 - Via Monte Bianco 60/A 20089 Rozzano (MI). Ogni agenzia ha un proprio titolare ed è autonoma. Privacy policy | Policy utilizzo | Cookie policy