Capannone in affitto

Mapello, Via Giulio Natta
€ 23.500 / mese
6 locali 6 locali
4400 Mq 4400 Mq
6 bagni 6 bagni

Capannone in affitto

Mapello, Via Giulio Natta

Descrizione annuncio

COSA SAPERE DELL'IMMOBILE

PER INFORMAZIONI ED APPUNTAMENTI CHIAMA 035 77 30 58

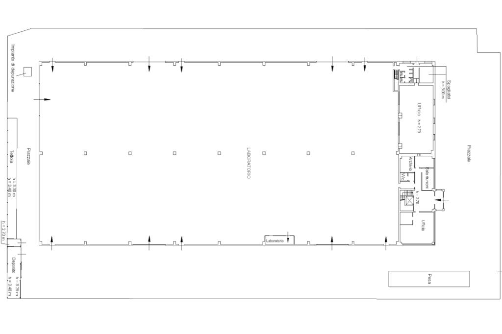
Il capannone proposto in locazione ha una superficie complessiva di circa 4.400 metri quadrati, di cui 580 metri quadrati di uffici. Inoltre, possiede ulteriori 2.000 metri quadrati di area esterna esclusiva.

DESCRIZIONE E PARTICOLARITA'

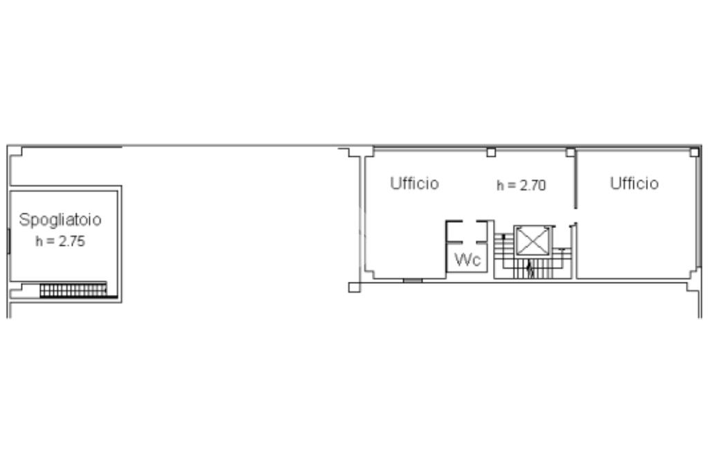
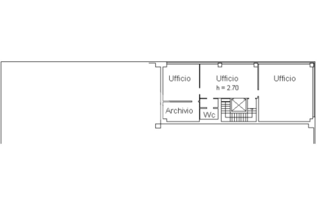
Il capannone misura 3.600 metri quadrati, ha un'altezza di 11,00 metri, con altezza sottotrave di 10,20 metri ed è accessibile tramite cinque portoni alti 5,80 metri. L'immobile si sviluppa lungo due diverse campate, le quali nell'insieme misurano circa 42,50 metri in larghezza e circa 85,00 metri in lunghezza. La struttura è dotata dell'impianto di riscaldamento a irraggiamento, dell'impianto elettrico con sistema Blindosbarra e dell'impianto di illuminazione. La soluzione è fornita dell'impianto di allarme, di videosorveglianza, dall'anello antincendio a idranti e dall'impianto ad aria compressa con le calate su ogni pilastro. Inoltre, sono presenti quattro carroponti, con le seguenti portate: 10 tonnellate, 20 tonnellate, 25 tonnellate e 35 tonnellate. L'immobile è completo degli spogliatoi con servizi igienici e docce, per un totale di ulteriori 100 metri quadrati. All'interno del capannone è presente un soppalco portante di circa 120 metri quadri, sfruttabile come magazzino. Gli uffici si sviluppano su tre livelli: al piano terra troviamo 220 metri quadrati, mentre il piano primo e il secondo piano misurano 180 metri quadrati ciascuno. La parte direzionale, controsoffittata e munita di pavimento flottante, è servita dall'impianto di riscaldamento e condizionamento e ogni piano è completo di un servizio igienico. La proprietà è interamente recintata e possiede ulteriori 2.000 metri quadrati di area esterna esclusiva, alla quale si accede tramite un cancello con larghezza pari a 8,00 metri. Esternamente, è presente una pesa con portata di 100 tonnellate e una vasca di raccolta con capienza massima di 20.000 litri.

Vista la rilevanza del capannone, la condizione strutturale dell'immobile e l'entità del canone di locazione mensile, sono richiesti: tre mesi di deposito cauzionale, dodici mensilità di fidejussione bancaria e la permanenza minima di tre anni.

UBICAZIONE E CONTESTO

Il complesso è ubicato nella zona industriale Comune di Mapello, a pochi minuti di distanza dalla Strada Provinciale SP342, la quale collega il paese ai Comuni limitrofi. In aggiunta, dista circa una decina di chilometri dal casello autostradale A4 di Dalmine. Esternamente sono presenti 18 posti auto, di cui due coperti.

Mostra tutto

Nelle vicinanze

Trasporto pubblico Trasporto pubblico
Terno
Terno
2,0 Km
Ponte San Pietro
Ponte San Pietro
2,3 Km
1133
1133
900 m
1135
1135
960 m
Ricariche auto elettriche Ricariche auto elettriche
Evbility Presezzo
1,5 Km
Iperal Presezzo
2,2 Km
Evbility Ponte San Pietro
2,3 Km
EnelX Polisportiva Brembate
2,5 Km
Municipio di Brembate di Sopra | EnelX
2,7 Km
Scuole Scuole
Scuola Elementare
930 m
Istituto Tecnico Commerciale "Maironi da Ponte"
1,8 Km
Liceo Scientifico "Maironi da Ponte"
1,9 Km
Scuola Primaria comunale
2,1 Km
Scuole
2,7 Km
Farmacia Farmacia
Farmacia
900 m
Farmacia Corbellini
2,4 Km
Mauri
2,6 Km
Farmacia Comunale
2,7 Km
Farmacia Le Ghiaie
2,8 Km
Ospedali Ospedali
Policlinico San Pietro
1,6 Km
Supermercati Supermercati
LD
1,4 Km
Ipercoop
1,4 Km
EuroSpin
1,5 Km
Lidl
2,0 Km
Iperal
2,1 Km
Negozi Negozi
MD Market
2,5 Km
Negozi
2,7 Km
Bar Bar
Bar
580 m
bar del bocciodromo
1,4 Km
Bar Tower
1,5 Km
Strabar
2,1 Km
Caffè de Fiola
2,1 Km
Ristoranti Ristoranti
Trattoria Barachì
230 m
Alla Vecchia Fontana
1,1 Km
Ristorante Sandro
1,2 Km
Ristoranti
1,9 Km
Villa Martinelli
1,9 Km
Mostra tutto

Caratteristiche

Rif.:
61137035
Piano:
Terra di 3
Totale piani:
3
Posti auto:
18
Condizionamento:
Autonomo
Ascensore:
No
Mostra tutto
Prezzo Prezzo
€ 23.500 / mese
Spese annue Spese annue
€ 0

Classe Energetica

E
E
E
E
E
E
E
E
E
EP globale non rinnovabile:
205.95 kW h/m² anno
EP invernale del fabbricato:
EP estiva del fabbricato:
Anno di costruzione:
2006
Riscaldamento:
Autonomo
Tipo impianto:
Ad aria
Tipo alimentazione:
Metano

Ti interessa visionare l'immobile?

Fissa un appuntamento  Fissa un appuntamento

Richiedi informazioni

* Questi campi sono obbligatori
Affiliato
Industriale Curno Srl
Via Lecco, 73/A 24035 Curno (BG)

Il nostro staff


  • Debora Defendi
    Collaboratrice

  • Camilla Gervasoni
    Collaboratrice

  • Ermanno Leoni
    Affiliato

  • Andrea Longhi
    Collaboratore

  • Alessia Mazzoleni
    Collaboratrice

  • Chiara Innocenti
    Coordinatrice

  • Susanna Ye
    Collaboratrice

  • Alice Cesana Zotti
    Affiliata
Via Lecco, 73/A 24035 Curno (BG)
Zona: Almenno San Salvatore-Valbrembo-Curno-Presezzo-Isola Bergamasca Nord Ovest
Mostra su mappa
Affiliato
Industriale Curno Srl
Via Lecco, 73/A 24035 Curno (BG)

2025 Tecnocasa Franchising S.p.A. - P. IVA 08365160152 - Via Monte Bianco 60/A 20089 Rozzano (MI). Ogni agenzia ha un proprio titolare ed è autonoma. Privacy policy | Policy utilizzo | Cookie policy