Negozio in vendita

Madone, Via Roma
€ 455.000
7 locali 7 locali
360 Mq 360 Mq
5 bagni 5 bagni

Negozio in vendita

Madone, Via Roma

Descrizione annuncio

COSA SAPERE DELL'IMMOBILE

PER INFORMAZIONI ED APPUNTAMENTI CHIAMA 035 77 30 58

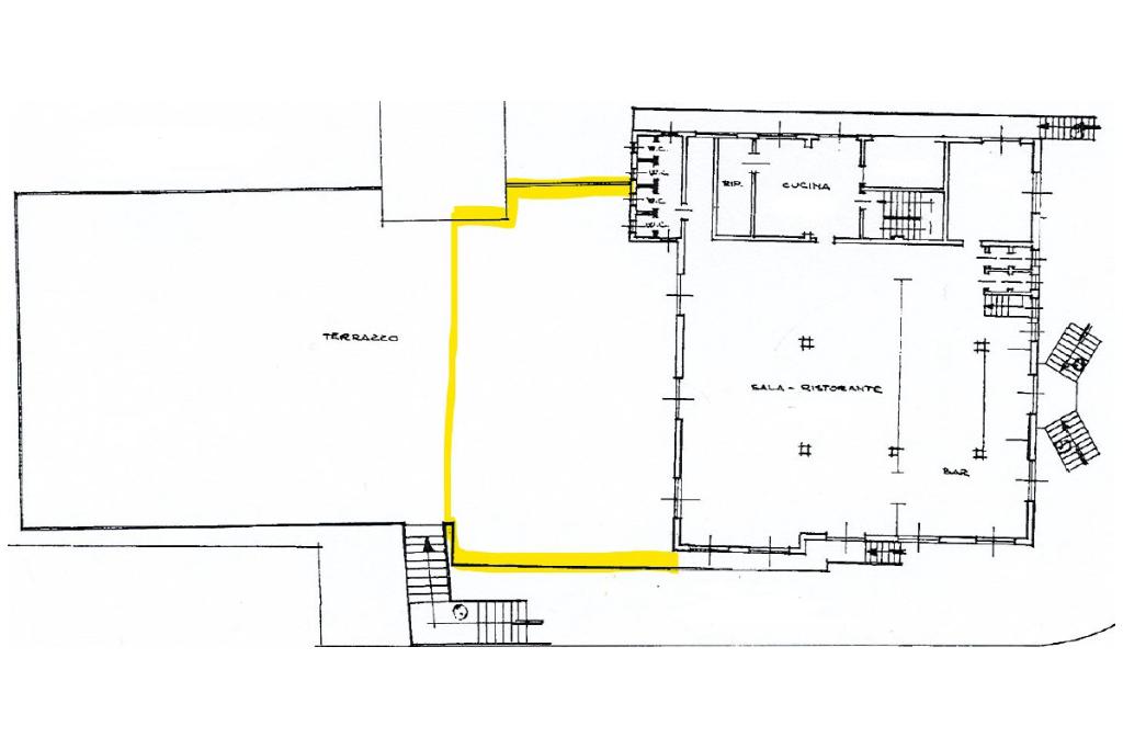
Proponiamo in vendita un negozio con superficie di 360 metri quadrati, situato al piano rialzato.

DESCRIZIONE E PARTICOLARITA'

Il negozio misura circa 360 metri quadrati ed è situato su piano rialzato. La soluzione è attualmente un open space con anche un locale ed è dotata di cinque servizi igienici di cui due per gli uomini, due per le donne ed uno a norma disabili. Il locale ha un’altezza di 3,00 metri, inoltre l’ambiente è particolarmente luminoso grazie alla presenza diverse finestre situate in ogni parete. La struttura possiede l’impianto di riscaldamento autonomo e condizionamento autonomo, l’impianto elettrico quello di illuminazione e i rilevatori anticincendio. L’immobile è dotato di una canna fumaria e l’aspirazione fumi. La soluzione, controsoffittata, presenta una posizione ad angolo con doppio ingresso di cui uno a norma disabili.

UBICAZIONE E CONTESTO

Il complesso è ubicato nel Comune di Madone e si affaccia sulla Strada Provinciale SP155, la quale collega il paese ai Comuni limitrofi. L’immobile gode di circa 20 parcheggi pubblici situati nelle vicinanze dell’immobile. In aggiunta, dista circa sei chilometri dal casello autostradale A4 di Capriate.

Mostra tutto

Nelle vicinanze

Trasporto pubblico Trasporto pubblico
Trasporto pubblico
210 m
848
848
2,8 Km
Ricariche auto elettriche Ricariche auto elettriche
Evbility Filago Via Moro
2,0 Km
Scuole Scuole
XPRESS Scuola di lingue
430 m
Scuola Primaria Edmondo De Amicis
2,7 Km
Scuola Secondaria Aldo Moro
3,0 Km
Farmacia Farmacia
Farmacia
190 m
Farmacia Fumagalli
1,8 Km
Supermercati Supermercati
Alimentari Menni
180 m
Punto SMA
270 m
Conad
970 m
Negozi Negozi
Negozi
320 m
La bottega del campanile
1,8 Km
U2
2,4 Km
Bar Bar
Sun Flower
190 m
Melograno
190 m
Caffè dei Vignali
260 m
Bar
670 m
L'oca ubriaca
1,8 Km
Ristoranti Ristoranti
Pizzeria
130 m
L'Agrodolce
820 m
Ristoranti
2,9 Km
Mostra tutto

Caratteristiche

Rif.:
61192404
Piano:
1 di 2 (Piano rialzato)
Posti auto:
20
Condizionamento:
Autonomo
Ascensore:
No
Riscaldamento:
Autonomo
Mostra tutto
Prezzo Prezzo
€ 455.000
Rata mutuo Rata mutuo
€ 2.145 / mese
Spese annue Spese annue
€ 0
Proponi il tuo prezzoProponi il tuo prezzo

Classe Energetica

Questo immobile è esente da classe energetica
Anno di costruzione:
1980
Riscaldamento:
Autonomo
Tipo impianto:
Ad aria
Tipo alimentazione:
Aria

Ti interessa visionare l'immobile?

Fissa un appuntamento  Fissa un appuntamento

Richiedi informazioni

Clicca su Leggi per aprire l'informativa
* Questi campi sono obbligatori

Calcola il tuo mutuo

Semplice e senza impegno
Anticipo

( % )
Mutuo

( % )

pochi semplici passi

inserisci i tuoi dati
Questionario completato
Grazie per aver richiesto un appuntamento senza impegno con un nostro Consulente del Credito e Assicurativo.

Hai inserito correttamente tutti i dati necessari e a breve riceverai una e-mail con un link da convalidare per inviare i tuoi dati.
Affiliato
Industriale Curno Srl
Via Lecco, 73/A 24035 Curno (BG)

Il nostro staff


  • Debora Defendi
    Collaboratrice

  • Ermanno Leoni
    Affiliato

  • Susanna Ye
    Collaboratrice

  • Alice Cesana Zotti
    Affiliata
Via Lecco, 73/A 24035 Curno (BG)
Zona: Almenno San Salvatore-Valbrembo-Curno-Presezzo-Isola Bergamasca Nord Ovest
Mostra su mappa
Affiliato
Industriale Curno Srl
Via Lecco, 73/A 24035 Curno (BG)

2026 Tecnocasa Franchising S.p.A. - P. IVA 08365160152 - Via Monte Bianco 60/A 20089 Rozzano (MI). Ogni agenzia ha un proprio titolare ed è autonoma. Privacy policy | Policy utilizzo | Cookie policy