Negozio in vendita

Calusco D'Adda, Via Rivierasca dell'Adda
1 locale 1 locale
600 Mq 600 Mq
3 bagni 3 bagni

Negozio in vendita

Calusco D'Adda, Via Rivierasca dell'Adda

Descrizione annuncio

COSA SAPERE DELL'IMMOBILE

PER INFORMAZIONI ED APPUNTAMENTI CHIAMA 035 77 30 58

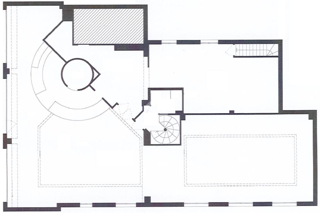
Proponiamo in vendita un negozio con superficie di circa 600 metri quadrati, di cui 300 metri quadrati di magazzino al piano seminterrato primo collegato internamente. La zona commerciale di circa 300 metri quadri si sviluppa interamente al piano terra rialzato.

DESCRIZIONE E PARTICOLARITA'

Il negozio misura complessivamente 600 metri quadrati e si estende al piano terra e seminterrato di una palazzina che si sviluppa su due livelli. La soluzione, controsoffittata, è attualmente un openspace ed è munita di tre servizi igienici, di cui uno a norma disabili. Il negozio è servito dall’impianto di riscaldamento e di condizionamento a split, dall’impianto elettrico e da quello di illuminazione. L'ambiente è luminoso grazie alla presenza di tre vetrine e presenta una posizione ad angolo con doppio ingresso a norma disabili tramite saracinesca automatica. L’immobile è provvisto di canna fumaria e di un sistema di aspirazione fumi. Inoltre, dispone di un’uscita di emergenza attraverso una porta tagliafuoco.

UBICAZIONE E CONTESTO

Il complesso è ubicato nel Comune di Calusco d’Adda, a pochi minuti dalla Strada Provinciale SP170, la quale collega la Città ai Comuni limitrofi. La soluzione gode di venti parcheggi pubblici situati nelle vicinanze della stessa.

Mostra tutto

Nelle vicinanze

Trasporto pubblico Trasporto pubblico
Calusco
Calusco
960 m
Trasporto pubblico
400 m
Ricariche auto elettriche Ricariche auto elettriche
Gran Mercato Calusco d'Adda | EnelX
810 m
Calusco d'Adda Risorgimento | RESSOLAR
1,5 Km
Evbility Carvico
1,6 Km
Sotto il Monte Fornace | RESSOLAR
2,5 Km
Scuole Scuole
Scuola Elementare paritaria parificata Maria Consolatrice
320 m
Scuola Media
2,0 Km
Scuole
2,4 Km
Scuola Primaria Leonardo da Vinci
2,7 Km
Farmacia Farmacia
Farmacia Dottore Casati
1,2 Km
Supermercati Supermercati
Gran Mercato
780 m
Supermercati
1,4 Km
Negozi Negozi
Jolly Più
990 m
Il Mondo della Frutta
1,8 Km
COOP
3,0 Km
Bar Bar
La Coda del Gallo
620 m
Dancing Eclisse
1,9 Km
Zoom Café
2,0 Km
Cremeria Bel Sit
2,5 Km
Muttley Cafè
2,6 Km
Ristoranti Ristoranti
Yama
740 m
Al Peperoncino
1,1 Km
Pizza Leggera
1,5 Km
Gusto 86
2,0 Km
Ristorante Albergo Etrusco
2,1 Km
Mostra tutto

Caratteristiche

Rif.:
61136076
Piano:
Terra di 2
Totale piani:
2
Condizionamento:
Autonomo
Ascensore:
No
Riscaldamento:
Autonomo
Mostra tutto
Prezzo Prezzo
€ 400.000
Rata mutuo Rata mutuo
€ 1.888 / mese
Spese annue Spese annue
€ 0
Anche in affitto a
Proponi il tuo prezzoProponi il tuo prezzo

Classe Energetica

Questo immobile è esente da classe energetica
Anno di costruzione:
1980
Riscaldamento:
Autonomo
Tipo impianto:
Ad aria
Tipo alimentazione:
Aria

Ti interessa visionare l'immobile?

Fissa un appuntamento  Fissa un appuntamento

Richiedi informazioni

Clicca su Leggi per aprire l'informativa
* Questi campi sono obbligatori

Calcola il tuo mutuo

Semplice e senza impegno
Anticipo

( % )
Mutuo

( % )

pochi semplici passi

inserisci i tuoi dati
Questionario completato
Grazie per aver richiesto un appuntamento senza impegno con un nostro Consulente del Credito e Assicurativo.

Hai inserito correttamente tutti i dati necessari e a breve riceverai una e-mail con un link da convalidare per inviare i tuoi dati.
Affiliato
Industriale Curno Srl
Via Lecco, 73/A 24035 Curno (BG)

Il nostro staff


  • Debora Defendi
    Collaboratrice

  • Camilla Gervasoni
    Collaboratrice

  • Ermanno Leoni
    Affiliato

  • Alessia Mazzoleni
    Collaboratrice

  • Chiara Innocenti
    Coordinatrice

  • Susanna Ye
    Collaboratrice

  • Alice Cesana Zotti
    Affiliata
Via Lecco, 73/A 24035 Curno (BG)
Zona: Almenno San Salvatore-Valbrembo-Curno-Presezzo-Isola Bergamasca Nord Ovest
Mostra su mappa
Affiliato
Industriale Curno Srl
Via Lecco, 73/A 24035 Curno (BG)

2025 Tecnocasa Franchising S.p.A. - P. IVA 08365160152 - Via Monte Bianco 60/A 20089 Rozzano (MI). Ogni agenzia ha un proprio titolare ed è autonoma. Privacy policy | Policy utilizzo | Cookie policy