Ufficio in affitto

Bergamo, Via Nazario Sauro
€ 1.900 / mese
3 locali 3 locali
280 Mq 280 Mq
1 bagno 1 bagno

Ufficio in affitto

Bergamo, Via Nazario Sauro

Descrizione annuncio

COSA SAPERE DELL'IMMOBILE

PER INFORMAZIONI ED APPUNTAMENTI CHIAMA 035 77 30 58

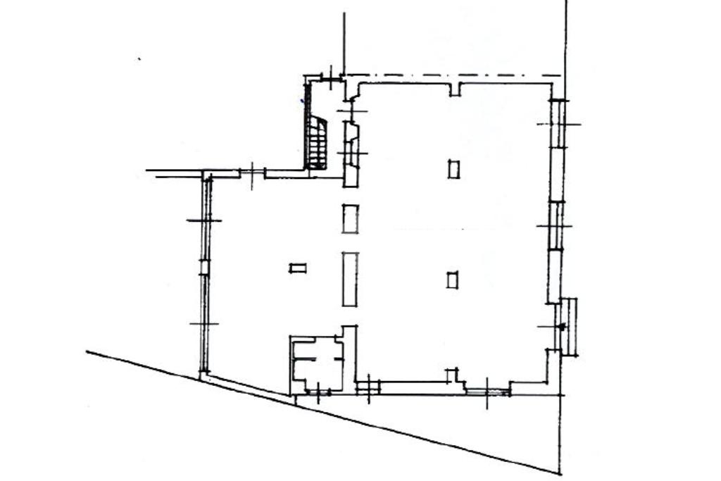
Proponiamo in locazione un ufficio con superficie complessiva di 280 metri quadrati, sviluppato su due piani di una palazzina di quattro livelli.

DESCRIZIONE E PARTICOLARITA'

L'ufficio misura complessivamente 280 metri quadrati e si sviluppa su due piani di una palazzina di quattro livelli. Al piano terra, la soluzione è suddivisa in due ambienti: un open space di circa 115 metri quadrati e un locale retrostante di circa 55 metri quadrati. Il piano seminterrato ospita invece un magazzino di 110 metri quadrati. L’immobile, controsoffittato e cablato, dispone di un servizio igienico con antibagno al piano terra e risulta luminoso grazie alla presenza di quattro vetrine. La struttura è servita dall’impianto di riscaldamento e condizionamento autonomo, dall’impianto elettrico e da quello di illuminazione. L’ambiente presenta una posizione ad angolo con doppio ingresso a norma disabili ed è accessibile tramite una saracinesca automatica. La palazzina ha beneficiato nel 2021 di una ristrutturazione esterna, che ha interessato tetto e facciata.

La soluzione sarà disponibile a partire dal mese di Giugno 2026.

UBICAZIONE E CONTESTO

Il complesso è ubicato nel Comune di Bergamo, a pochi minuti dalla Strada Statale SS470, la quale collega la Città ai Comuni limitrofi. La soluzione gode di circa 10 parcheggi pubblici situati nelle vicinanze della stessa.

Mostra tutto

Nelle vicinanze

Trasporto pubblico Trasporto pubblico
Bergamo
Bergamo
700 m
Bergamo Bassa
Bergamo Bassa
750 m
Bergamo FS
Bergamo FS
710 m
Bergamo Borgo Palazzo
Bergamo Borgo Palazzo
1,3 Km
161
161
120 m
Ricariche auto elettriche Ricariche auto elettriche
A2A BG Fast Porta Nuova
140 m
Bergamo Pascoli | RESSOLAR FAST
490 m
A2A BG Fast Papa Giovanni XXIII
520 m
A2A BG Fratelli Calvi
660 m
A2A BG Stazione
670 m
Scuole Scuole
L'arcobaleno di Ribi
290 m
Gli Amici di Pooh Borgo Porta Nuova
320 m
Scuole I e II grado (Opera Sant'Alessandro)
320 m
Borgo Porta Nuova
320 m
Istituto Musicale Gaetano Donizetti - Sede
350 m
Farmacia Farmacia
Parafarmacia dei Mille
170 m
Farmacia Terni
190 m
Farmacia Centrale
190 m
Farmacia Porta Nuova
230 m
Vitamin Store
280 m
Ospedali Ospedali
R.S.A. Santa Chiara
380 m
Habilita San Marco s.p.a. - sede
440 m
Presidio ASL Matteo Rota
500 m
Habilita San Marco s.p.a. - sezione
520 m
Casa di Cura Beato Luigi Palazzolo
700 m
Supermercati Supermercati
Carrefour
140 m
Carrefour Express
390 m
Conad
410 m
IN'S
550 m
PAM
740 m
Negozi Negozi
Landi Fashion
100 m
Carom
100 m
Il mondo di Patti
100 m
Landi Sport
110 m
Lina T.
110 m
Bar Bar
Il Bitterino di Porta Nuova
160 m
Bar Hemingway
170 m
Mi Snack
280 m
Caffè Ristretto
480 m
Barancio
560 m
Ristoranti Ristoranti
Ezio Restaurant Gritti
130 m
Al Duse
140 m
Okai
150 m
Trattoria Caprese
150 m
100 Montaditos
160 m
Mostra tutto

Caratteristiche

Rif.:
61151004
Piano:
Terra di 4
Totale piani:
4
Condizionamento:
Autonomo
Ascensore:
No
Riscaldamento:
Autonomo
Mostra tutto
Prezzo Prezzo
€ 1.900 / mese
Spese annue Spese annue
€ 1.500

Altre caratteristiche

Descrizione dei locali
Bagno antibagno

Classe Energetica

E
E
E
E
E
E
E
E
E
EP globale non rinnovabile:
570.27 kW h/m² anno
EP globale rinnovabile:
570.27 kW h/m² anno
EP invernale del fabbricato:
EP estiva del fabbricato:
Anno di costruzione:
1960
Riscaldamento:
Autonomo
Tipo impianto:
Ad aria
Tipo alimentazione:
Aria

Ti interessa visionare l'immobile?

Fissa un appuntamento  Fissa un appuntamento

Richiedi informazioni

Clicca su Leggi per aprire l'informativa
* Questi campi sono obbligatori
Affiliato
Industriale Curno Srl
Via Lecco, 73/A 24035 Curno (BG)

Il nostro staff


  • Debora Defendi
    Collaboratrice

  • Camilla Gervasoni
    Collaboratrice

  • Ermanno Leoni
    Affiliato

  • Alessia Mazzoleni
    Collaboratrice

  • Chiara Innocenti
    Coordinatrice

  • Susanna Ye
    Collaboratrice

  • Alice Cesana Zotti
    Affiliata
Via Lecco, 73/A 24035 Curno (BG)
Zona: Almenno San Salvatore-Valbrembo-Curno-Presezzo-Isola Bergamasca Nord Ovest
Mostra su mappa
Affiliato
Industriale Curno Srl
Via Lecco, 73/A 24035 Curno (BG)

2025 Tecnocasa Franchising S.p.A. - P. IVA 08365160152 - Via Monte Bianco 60/A 20089 Rozzano (MI). Ogni agenzia ha un proprio titolare ed è autonoma. Privacy policy | Policy utilizzo | Cookie policy