Negozio in vendita

Bergamo, Via De Gasperi - Stadio
€ 300.000
6 locali 6 locali
250 Mq 250 Mq
2 bagni 2 bagni

Negozio in vendita

Bergamo, Via De Gasperi - Stadio

Descrizione annuncio

COSA SAPERE DELL'IMMOBILE

PER INFORMAZIONI ED APPUNTAMENTI CHIAMA 035 77 30 58

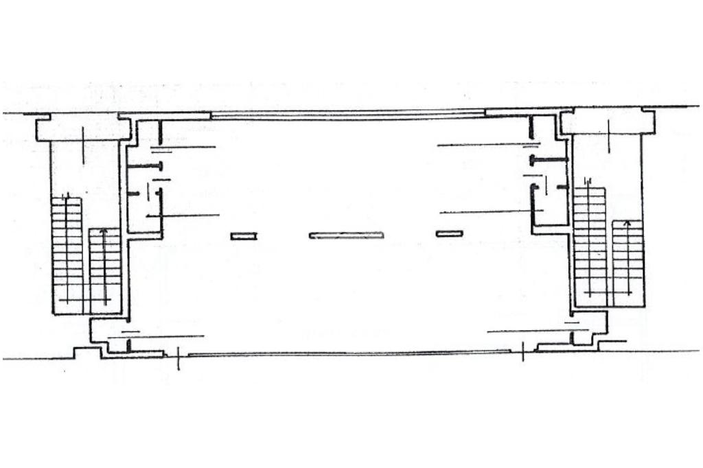
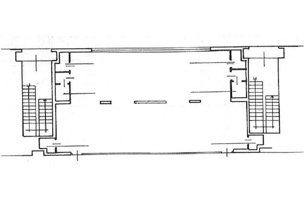
Proponiamo in vendita un negozio con superficie complessiva di 250 metri quadrati, situato al piano terra di una struttura sviluppata su tre livelli.

DESCRIZIONE E PARTICOLARITA'

Il negozio, situato al piano terra di una struttura sviluppata su tre livelli, ha una superficie complessiva di 250 metri quadrati: circa 130 metri quadrati situati al piano terra e ulteriori 120 metri quadrati di magazzino al piano seminterrato. La soluzione è attualmente suddivisa in sei locali ed è dotata di due servizi igienici con antibagno.

L’immobile, cablato, dispone dell’impianto di riscaldamento e di condizionamento autonomo, dell’impianto elettrico e di quello di illuminazione. È inoltre provvisto di canna fumaria, sistema di allarme e sistema antincendio a idranti.

L’ambiente risulta luminoso grazie alla presenza di due vetrine ed è facilmente accessibile tramite doppio ingresso a norma disabili.

UBICAZIONE E CONTESTO

Il complesso è ubicato nel Comune di Bergamo, a pochi minuti dalla Strada Statale SS470, la quale collega la Città ai Comuni limitrofi. La soluzione gode di molteplici parcheggi pubblici situati nelle vicinanze della stessa.

Mostra tutto

Nelle vicinanze

Trasporto pubblico Trasporto pubblico
Bergamo Alta
Bergamo Alta
1,5 Km
Bergamo Bassa
Bergamo Bassa
1,7 Km
Bergamo Bianzana
Bergamo Bianzana
1,3 Km
Bergamo Redona
Bergamo Redona
1,3 Km
371
371
330 m
Ricariche auto elettriche Ricariche auto elettriche
A2A BG Fast Baioni
520 m
A2A BG Pacati
670 m
A2A BG Don Orione
1,1 Km
A2A BG Palanorda
1,2 Km
A2A BG Roccoli
1,3 Km
Scuole Scuole
Scuole
60 m
Istituto Comprensivo Camozzi
70 m
Scuola primaria "G. Rosa"
220 m
Scuola Svizzera
380 m
Scuola Primaria Papa Giovanni XXIII
570 m
Farmacia Farmacia
Farmacia Dott. Grassi
400 m
Farmacia Venturini Giovanna
810 m
Farmacia Mandelli
870 m
Farmacia
1,0 Km
Farmacia Piazzoli
1,5 Km
Ospedali Ospedali
Casa di Cura Privata Villa Santa Apollonia
160 m
Avis
800 m
Don Orione
1,3 Km
Habilita San Marco s.p.a. - sezione
1,7 Km
Habilita San Marco s.p.a. - sede
1,8 Km
Supermercati Supermercati
Carrefour Market
560 m
MD
910 m
Carrefour - Borgo Santa Caterina
1,0 Km
Despar
1,1 Km
Esselunga di Via Corridoni
1,1 Km
Negozi Negozi
Panificio Bellini
360 m
Negozi
530 m
Panificio Capello
640 m
maniMpasta
920 m
Dance House
930 m
Bar Bar
Bar Conca Fiorita
420 m
Bar Qieen's
510 m
Degusto Birra & Cucina
580 m
Rio Bar
590 m
Bar
680 m
Ristoranti Ristoranti
Suzuran
360 m
Trattoria Baioni 45
520 m
Impronte
580 m
Pizzeria Portici
750 m
Da Nerone
760 m
Mostra tutto

Caratteristiche

Rif.:
61145505
Piano:
Terra di 3
Totale piani:
3
Condizionamento:
Autonomo
Ascensore:
No
Riscaldamento:
Autonomo
Mostra tutto
Prezzo Prezzo
€ 300.000
Rata mutuo Rata mutuo
€ 1.416 / mese
Spese annue Spese annue
€ 2.000
Proponi il tuo prezzoProponi il tuo prezzo

Classe Energetica

Questo immobile è esente da classe energetica
Anno di costruzione:
1985
Riscaldamento:
Autonomo
Tipo impianto:
A radiatori
Tipo alimentazione:
Metano

Ti interessa visionare l'immobile?

Fissa un appuntamento  Fissa un appuntamento

Richiedi informazioni

Clicca su Leggi per aprire l'informativa
* Questi campi sono obbligatori

Calcola il tuo mutuo

Semplice e senza impegno
Anticipo

( % )
Mutuo

( % )

pochi semplici passi

inserisci i tuoi dati
Questionario completato
Grazie per aver richiesto un appuntamento senza impegno con un nostro Consulente del Credito e Assicurativo.

Hai inserito correttamente tutti i dati necessari e a breve riceverai una e-mail con un link da convalidare per inviare i tuoi dati.
Affiliato
Industriale Curno Srl
Via Lecco, 73/A 24035 Curno (BG)

Il nostro staff


  • Debora Defendi
    Collaboratrice

  • Camilla Gervasoni
    Collaboratrice

  • Ermanno Leoni
    Affiliato

  • Alessia Mazzoleni
    Collaboratrice

  • Chiara Innocenti
    Coordinatrice

  • Susanna Ye
    Collaboratrice

  • Alice Cesana Zotti
    Affiliata
Via Lecco, 73/A 24035 Curno (BG)
Zona: Almenno San Salvatore-Valbrembo-Curno-Presezzo-Isola Bergamasca Nord Ovest
Mostra su mappa
Affiliato
Industriale Curno Srl
Via Lecco, 73/A 24035 Curno (BG)

2025 Tecnocasa Franchising S.p.A. - P. IVA 08365160152 - Via Monte Bianco 60/A 20089 Rozzano (MI). Ogni agenzia ha un proprio titolare ed è autonoma. Privacy policy | Policy utilizzo | Cookie policy