Negozio in affitto

Bergamo, Via Nazario Sauro
€ 1.900 / mese
3 locali 3 locali
280 Mq 280 Mq
1 bagno 1 bagno

Negozio in affitto

Bergamo, Via Nazario Sauro

Descrizione annuncio

COSA SAPERE DELL'IMMOBILE

PER INFORMAZIONI ED APPUNTAMENTI CHIAMA 035 77 30 58

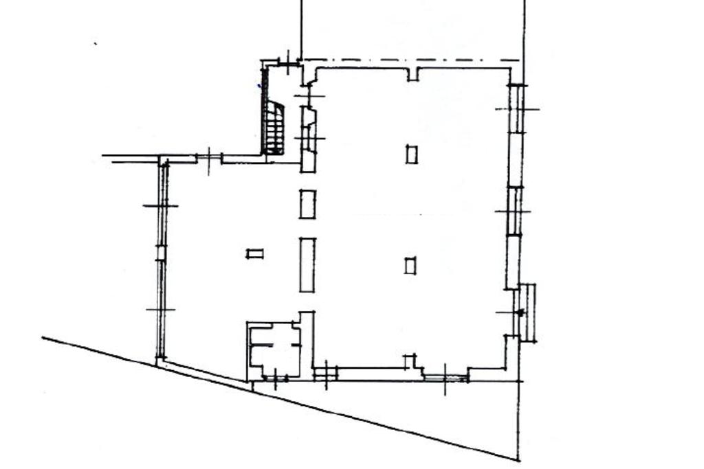
Proponiamo in locazione un negozio con superficie complessiva di 280 metri quadrati, sviluppato su due piani di una palazzina di quattro livelli.

DESCRIZIONE E PARTICOLARITA'

Il negozio misura complessivamente 280 metri quadrati e si sviluppa su due piani di una palazzina di quattro livelli. Al piano terra, la soluzione è suddivisa in due ambienti: un open space di circa 115 metri quadrati e un locale retrostante di circa 55 metri quadrati. Il piano seminterrato ospita invece un magazzino di 110 metri quadrati. L’immobile, controsoffittato e cablato, dispone di un servizio igienico con antibagno al piano terra e risulta luminoso grazie alla presenza di quattro vetrine. La struttura è servita dall’impianto di riscaldamento e condizionamento autonomo, dall’impianto elettrico e da quello di illuminazione. L’ambiente presenta una posizione ad angolo con doppio ingresso a norma disabili ed è accessibile tramite una saracinesca automatica. La palazzina ha beneficiato nel 2021 di una ristrutturazione esterna, che ha interessato tetto e facciata.

La soluzione sarà disponibile a partire dal mese di Giugno 2026.

UBICAZIONE E CONTESTO

Il complesso è ubicato nel Comune di Bergamo, a pochi minuti dalla Strada Statale SS470, la quale collega la Città ai Comuni limitrofi. La soluzione gode di circa 10 parcheggi pubblici situati nelle vicinanze della stessa.

Mostra tutto

Nelle vicinanze

Trasporto pubblico Trasporto pubblico
Bergamo Alta
Bergamo Alta
990 m
Bergamo Bassa
Bergamo Bassa
1,1 Km
Bergamo San Fermo
Bergamo San Fermo
910 m
Bergamo Bianzana
Bergamo Bianzana
960 m
Dalmine
Dalmine
100 m
Ricariche auto elettriche Ricariche auto elettriche
A2A BG Palanorda
320 m
A2A BG Fast Baioni
850 m
A2A BG Cefalonia
1,1 Km
A2A BG Parcheggio del cimitero
1,1 Km
Bergamo Pascoli | RESSOLAR FAST
1,2 Km
Scuole Scuole
Istituto Figlie Sacro Cuore di Gesù
230 m
Liceo Scientifico Mascheroni
230 m
Centro Scolastico Tua Scuola
260 m
Università degli Studi di Bergamo
410 m
Scuola Primaria 'Da Rosciate'
520 m
Farmacia Farmacia
Farmacia Mandelli
10 m
Farmacia
560 m
Farmacia Sangalli
920 m
Natur house
970 m
Farmacia Guidetti
1,0 Km
Ospedali Ospedali
Habilita San Marco s.p.a. - sezione
950 m
Casa di Cura Privata Villa Santa Apollonia
970 m
Habilita San Marco s.p.a. - sede
1,1 Km
R.S.A. Santa Chiara
1,5 Km
Presidio ASL Matteo Rota
1,5 Km
Supermercati Supermercati
Carrefour - Borgo Santa Caterina
130 m
Despar
530 m
PAM
790 m
Penny
850 m
Pam Local
910 m
Negozi Negozi
Forno Fassi
130 m
Ar House Vintage
150 m
Par.co nel Borgo
160 m
Petali di rose
170 m
Dance House
290 m
Bar Bar
Caffè Poeme
50 m
Crocevia
140 m
Marika'sss
240 m
La Chupiteria
280 m
Degusto Birra & Cucina
300 m
Ristoranti Ristoranti
CantiereCucina
140 m
al Pitentino
270 m
Tijuana
400 m
Trattoria Ca' dell'oste
420 m
I Sapori di Terra e Mare
430 m
Mostra tutto

Caratteristiche

Rif.:
61150766
Piano:
Terra di 4
Totale piani:
4
Condizionamento:
Autonomo
Ascensore:
No
Riscaldamento:
Autonomo
Mostra tutto
Prezzo Prezzo
€ 1.900 / mese
Spese annue Spese annue
€ 1.500

Altre caratteristiche

Descrizione dei locali
Bagno antibagno

Classe Energetica

E
E
E
E
E
E
E
E
E
EP globale non rinnovabile:
570.27 kW h/m² anno
EP globale rinnovabile:
570.27 kW h/m² anno
EP invernale del fabbricato:
EP estiva del fabbricato:
Anno di costruzione:
1960
Riscaldamento:
Autonomo
Tipo impianto:
Ad aria
Tipo alimentazione:
Aria

Ti interessa visionare l'immobile?

Fissa un appuntamento  Fissa un appuntamento

Richiedi informazioni

Clicca su Leggi per aprire l'informativa
* Questi campi sono obbligatori
Affiliato
Industriale Curno Srl
Via Lecco, 73/A 24035 Curno (BG)

Il nostro staff


  • Debora Defendi
    Collaboratrice

  • Camilla Gervasoni
    Collaboratrice

  • Ermanno Leoni
    Affiliato

  • Alessia Mazzoleni
    Collaboratrice

  • Chiara Innocenti
    Coordinatrice

  • Susanna Ye
    Collaboratrice

  • Alice Cesana Zotti
    Affiliata
Via Lecco, 73/A 24035 Curno (BG)
Zona: Almenno San Salvatore-Valbrembo-Curno-Presezzo-Isola Bergamasca Nord Ovest
Mostra su mappa
Affiliato
Industriale Curno Srl
Via Lecco, 73/A 24035 Curno (BG)

2025 Tecnocasa Franchising S.p.A. - P. IVA 08365160152 - Via Monte Bianco 60/A 20089 Rozzano (MI). Ogni agenzia ha un proprio titolare ed è autonoma. Privacy policy | Policy utilizzo | Cookie policy