Negozio in vendita

Berbenno, Via San Giovanni Bosco
€ 280.000
4 locali 4 locali
850 Mq 850 Mq
2 bagni 2 bagni

Negozio in vendita

Berbenno, Via San Giovanni Bosco

Descrizione annuncio

COSA SAPERE DELL'IMMOBILE

PER INFORMAZIONI ED APPUNTAMENTI CHIAMA 035 77 30 58


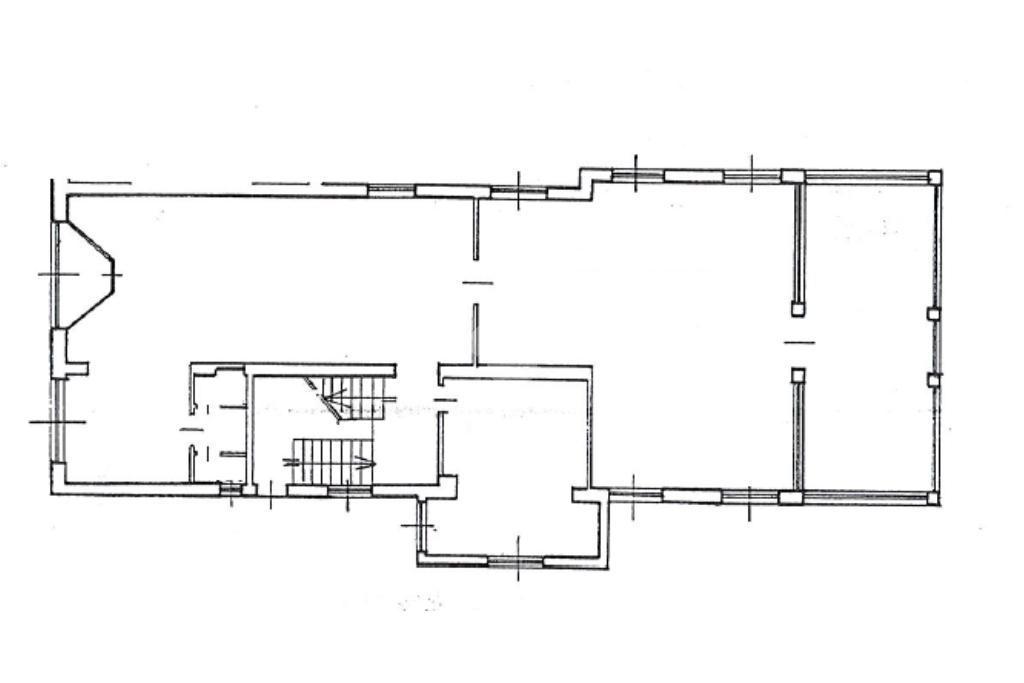
Proponiamo in vendita un ampio immobile commerciale-residenziale disposto su tre livelli, con una superficie complessiva di circa 850 metri quadrati.

DESCRIZIONE E PARTICOLARITÀ

Il piano terra misura circa 250 metri quadrati ed è attualmente arredato e suddiviso per l’attività di bar/ristorante. Internamente si compone di quattro locali: una cucina attrezzata, un angolo pizzeria e una veranda chiusa con vetrate di circa 40 metri quadrati.
La soluzione è dotata di impianto di riscaldamento autonomo a metano, impianto elettrico trifase 380 kW, impianto di illuminazione e doppi servizi igienici con antibagno. È presente inoltre canna fumaria per la cottura e l’areazione. L’immobile, controsoffittato, presenta una posizione ad angolo con doppio ingresso a norma disabili.

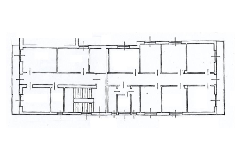
Il primo e il secondo piano, ciascuno di circa 250 metri quadrati, sono suddivisi in nove locali oltre a una cucina e un servizio igienico per piano, rendendoli ideali per attività complementari o per eventuale conversione ad uso ufficio o residenziale.

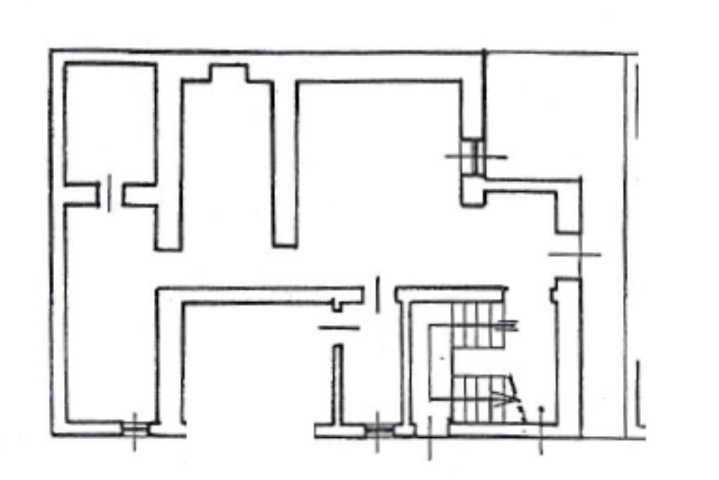
Al piano seminterrato si trova un ampio deposito di circa 100 metri quadrati, completo di impianto elettrico e di illuminazione.

La soluzione, accessibile tramite saracinesca automatica, è servita dal sistema di videosorveglianza ed è cablata.

UBICAZIONE E CONTESTO

Il complesso è ubicato nel Comune di Berbenno, a pochi minuti dalla Strada Provinciale SP17, la quale collega la Città ai Comuni limitrofi. La soluzione gode di circa 50 parcheggi pubblici situati nelle vicinanze della stessa.

Mostra tutto

Nelle vicinanze

Trasporto pubblico Trasporto pubblico
Berbenno
Berbenno
140 m
Trasporto pubblico
1,8 Km
Scuole Scuole
Istituto comprensivo Papa Giovanni XXIII
2,3 Km
Scuola Primaria Selino Basso
2,5 Km
Istituto Maria Consolatrice
2,6 Km
Scuole Elementari di Selino Basso
2,6 Km
Scuole
2,6 Km
Farmacia Farmacia
Farmacia Mazzoleni
2,0 Km
Farmacia Ghisalberti
2,5 Km
Farmacia San Martino
2,7 Km
Ospedali Ospedali
LAVS Brembilla
2,3 Km
CPA Villa fiorita
2,3 Km
Supermercati Supermercati
In Coop
2,3 Km
Alimentari Offredi
2,4 Km
Supermercato mary
2,5 Km
Negozi Negozi
Panza abbigliamento
2,4 Km
Panificio di Forcella Vittorio S.N.C.
2,4 Km
Panificio Musitelli Guido Roberto
2,5 Km
Trilly di Locatelli Cinzia
2,5 Km
Bar Bar
Bar
2,3 Km
Da Chiara cafe
2,4 Km
Luxuria cafe
2,4 Km
Happy
2,5 Km
Bar Pasta
2,6 Km
Ristoranti Ristoranti
Pizzeria asporto Da Ciri
2,4 Km
Ristorante pascoletto
2,5 Km
Gotti Donatella
2,5 Km
La Casera
2,5 Km
Cà Berizzi
2,5 Km
Mostra tutto

Caratteristiche

Rif.:
61115241
Piano:
Su più livelli di 3
Totale piani:
3
Balconi:
2
Condizionamento:
Assente
Ascensore:
No
Mostra tutto
Prezzo Prezzo
€ 280.000
Rata mutuo Rata mutuo
€ 1.322 / mese
Spese annue Spese annue
€ 0
Proponi il tuo prezzoProponi il tuo prezzo

Classe Energetica

Questo immobile è esente da classe energetica
Anno di costruzione:
1960
Riscaldamento:
Autonomo
Tipo impianto:
A radiatori
Tipo alimentazione:
Metano

Ti interessa visionare l'immobile?

Fissa un appuntamento  Fissa un appuntamento

Richiedi informazioni

Clicca su Leggi per aprire l'informativa
* Questi campi sono obbligatori

Calcola il tuo mutuo

Semplice e senza impegno
Anticipo

( % )
Mutuo

( % )

pochi semplici passi

inserisci i tuoi dati
Questionario completato
Grazie per aver richiesto un appuntamento senza impegno con un nostro Consulente del Credito e Assicurativo.

Hai inserito correttamente tutti i dati necessari e a breve riceverai una e-mail con un link da convalidare per inviare i tuoi dati.
Affiliato
Industriale Curno Srl
Via Lecco, 73/A 24035 Curno (BG)

Il nostro staff


  • Debora Defendi
    Collaboratrice

  • Camilla Gervasoni
    Collaboratrice

  • Ermanno Leoni
    Affiliato

  • Alessia Mazzoleni
    Collaboratrice

  • Chiara Innocenti
    Coordinatrice

  • Susanna Ye
    Collaboratrice

  • Alice Cesana Zotti
    Affiliata
Via Lecco, 73/A 24035 Curno (BG)
Zona: Almenno San Salvatore-Valbrembo-Curno-Presezzo-Isola Bergamasca Nord Ovest
Mostra su mappa
Affiliato
Industriale Curno Srl
Via Lecco, 73/A 24035 Curno (BG)

2025 Tecnocasa Franchising S.p.A. - P. IVA 08365160152 - Via Monte Bianco 60/A 20089 Rozzano (MI). Ogni agenzia ha un proprio titolare ed è autonoma. Privacy policy | Policy utilizzo | Cookie policy